一,海灣J-SAM-GST9123B消火栓按鈕特點
海灣J-SAM-GST9123B消火栓按鈕(以下簡稱消火栓按鈕)表面裝一按片,當啟用消火栓時,可直接按下按片,此時消火栓按鈕的紅色啟動指示燈亮,表明已向消防控制室發出了報警信息,火災報警控制器在確認了消防水泵已啟動運行后,就向消火栓按鈕發出命令信號點亮綠色回答指示燈。本按鈕主要具有以下特點:
?。?)新型插拔式卡接結構,安裝、拆卸簡單方便,按片在按下后可用專用工具復位。
?。?)消火栓按鈕為可重復使用型,采用壓下報警方式,按下后可用專用鑰匙復位。
(3)消火栓按鈕動作機構采用專利設計,抗灰塵能力強。
(4)按下消火栓按鈕按片,消火栓按鈕提供的獨立輸出觸點,可直接控制其它外部設備。
?。?)采用32位ARM微處理器實現信號處理,用數字信號與控制器進行通信,工作穩定可靠,對電磁干擾有良好的抑制能力。
?。?)地址碼為電子編碼,可現場改寫。
二,海灣J-SAM-GST9123B消火栓按鈕參數
?。?)工作電壓:
信號總線電壓:24V允許范圍:16V~28V
?。?)工作電流:
監視電流≤0.3mA
報警電流≤1.9mA
?。?)輸出容量:額定DC30V/100mA無源輸出觸點信號,接觸電阻≤0.1?
?。?)線制:消火栓按鈕與火災報警控制器信號二總線連接
?。?)編碼方式:電子編碼方式,占用一個總線編碼點,編碼范圍可在1~242之間任意設定
?。?)啟動零件型式:重復使用型
(7)啟動方式:人工按下按片
?。?)復位方式:用專用鑰匙手動復位
?。?)指示燈:紅色啟動指示燈,巡檢時閃亮,消火栓按鈕按下時此燈點亮;綠色回答指示燈,消防水泵運行時此燈點亮
?。?0)使用環境:
溫度:0℃~+55℃
相對濕度≤95%,不凝露
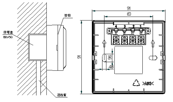
?。?1)外形尺寸:91mm×91mm×45.5 mm(含底殼)
(12)外殼防護等級:IP43
(13)殼體材料和顏色:ABS,紅色
(14)重量:約128g(含底殼)
?。?5)安裝孔距:60mm
三,海灣J-SAM-GST9123B消火栓按鈕布線
本消火栓按鈕為紅色全塑結構,分底盒與上蓋兩部分。底盒與上蓋采用拔插式結構裝配,安裝拆卸簡單、方便,連接緊密,非常便于工程調試及維修更換。消火栓按鈕外形示意圖如下

消火栓按鈕外接端子示意圖如下

其中:
Z1、Z2:接控制器二總線,無極性;
K1、K2:無源常開觸點。
布線要求:可選用截面積≥1.0mm2的雙絞線。
消火栓按鈕采用預埋盒安裝方式,安裝孔距為60mm。進線時只需拔下消火栓按鈕主體,從底殼的進線孔中穿入電纜并接在相應端子上,再插好消火栓按鈕主體即可。安裝示意圖如下;安裝孔距為60mm。
